您好!欢迎访问合肥仁楷智能装备有限公司官网!
咨询热线:
138-1681-8164
网站首页
关于仁楷
公司简介
企业文化
产品中心
高压系列
低压系列
通用产品
新闻资讯
服务与支持
联系我们
网站首页
关于仁楷
公司简介
企业文化
产品中心
高压系列
低压系列
通用产品
新闻资讯
服务与支持
联系我们
产品中心
为您带来性能稳定、安全耐用、价格实惠的高性价比选择
当前位置:
首页
产品中心
通用产品
产品中心
高压系列
低压系列
通用产品
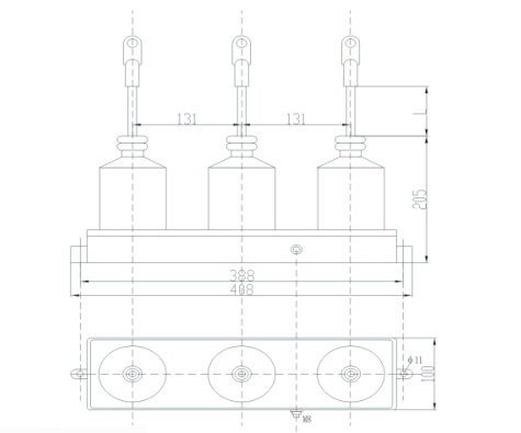
组合式交流无间隙氧化锌避雷器5
一、产品概述
组合式氧化锌避雷器是基于传统的单只避雷器所研发出的一种产品,单只氧化锌避雷器只能限制相对地过电压,组合式氧化锌避雷器采用四星级接法不紧可以限制相对地电压同时也可以限制相间过电压。
二、产品选型
三、使用及注意事项
1、用2500V(5000V)兆欧表测量避雷器绝缘电阻,其值应大于1000(2500)兆欧。
2、避雷器直流参考电压(U1mA)的测量:在避雷器的两端施加直流电压,带流过其电流稳定于1mA后,读出电压值并要求不低于其国标值为合格。应每年检测一次,超标跟换。
3、避雷器漏电流测量:在避雷器两端施加75%U1mA电压待稳定后,读出的值应不大于50uA为合格,投入运行前检测。应每年检测一次,超标更换。
4、避雷器所保护的电器设备做绝缘耐压试验时,应将其拆卸退出系统。
5、无间隙氧化锌避雷器严禁做工频耐压试验。
四、外形及安装尺寸
上一条:
组合式交流无间隙氧化锌避雷器 高能容型
下一条:
RKDMH电气火灾自动报警灭火系统
返回列表
立即咨询:138 1681 8164